Description
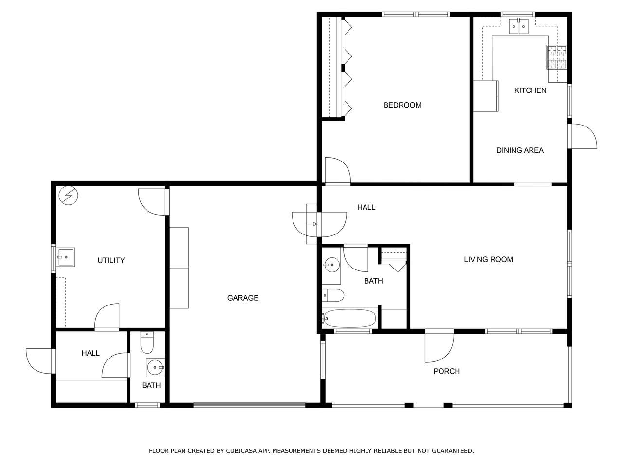
Here's a fantastic opportunity with many possibilities! The lower level of this structure features a spacious 1-bedroom, 1.5-bath residence, complete with a huge laundry/utility/storage room and a garage. Designed for future expansion, plans for the structure entails an upper level with 3 bedrooms and 2.5 baths, allowing you to construct the upper-level while residing below. Building plans will convey with the sale. The property is fully fenced offering added privacy and convenience with an electric gate, a paved driveway, and fruit trees. Located near restaurants, beaches, a hotel, grocery store, and more, this property provides convenience and the potential for customization.
-
1BEDS
-
0.28ACRES
-
1BATHS
-
11/2 BATHS
-
2,209SQFT
-
$129$/SQFT
School Ratings & Info
Description
Here's a fantastic opportunity with many possibilities! The lower level of this structure features a spacious 1-bedroom, 1.5-bath residence, complete with a huge laundry/utility/storage room and a garage. Designed for future expansion, plans for the structure entails an upper level with 3 bedrooms and 2.5 baths, allowing you to construct the upper-level while residing below. Building plans will convey with the sale. The property is fully fenced offering added privacy and convenience with an electric gate, a paved driveway, and fruit trees. Located near restaurants, beaches, a hotel, grocery store, and more, this property provides convenience and the potential for customization.
© 2025 St. Thomas Board of Realtors Multiple Listing Service & St. Croix Board of Realtors Multiple Listing Service. All rights reserved. IDX information is provided exclusively for consumers' personal, non-commercial use and may not be used for any purpose other than to identify prospective properties consumers may be interested in purchasing. Information displayed on this website for listings other than those of the website owner are displayed with permission of the St. Thomas Board of Realtors Multiple Listing Service (MLS). Real estate listings held by brokerage firms other than the owner of this website are marked with the words “Broker Reciprocity" or logo. This website may not display the entire St. Thomas Board of Realtors MLS active database, as some owner(s) of records may not have given permission for their listings to be displayed. Information is from sources deemed reliable but is not guaranteed. Prospective buyers should verify information independently. Data last updated: 2025-12-16T00:15:37.427.
